hero-image-0
hero-image-1

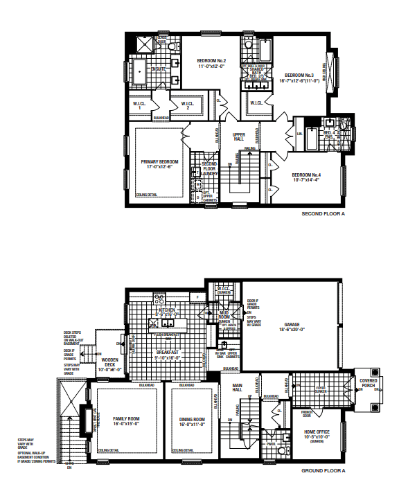
Secord - Elev. B Plan

Bondhead
For sale
For sale
From $1,418,990
2
4
3
1
1
From 3,162
unit-banner-imageunit-banner-imageunit-banner-image
Secord - Elev. B Plan details

Contact sales center

Get additional information including price lists and floor plans.

Interested? Receive updates

Stay informed with Livabl updates on new community details and available inventory.