hero-image-0
hero-image-1

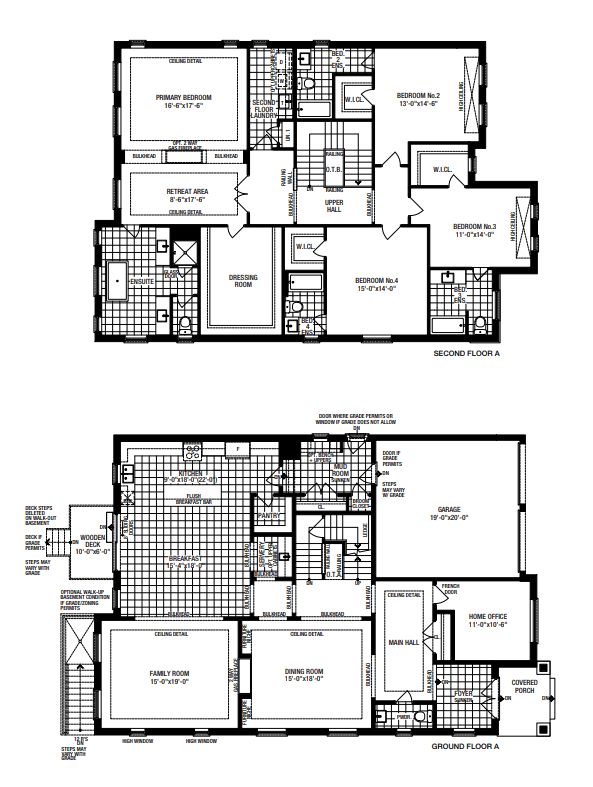
Nemat - Elev. A Plan

Bondhead
For sale
For sale
From $1,665,990
2
4
4
1
1
From 4,279
unit-banner-imageunit-banner-imageunit-banner-image
Nemat - Elev. A Plan details

Contact sales center

Get additional information including price lists and floor plans.

Interested? Receive updates

Stay informed with Livabl updates on new community details and available inventory.