hero-image-0
hero-image-1

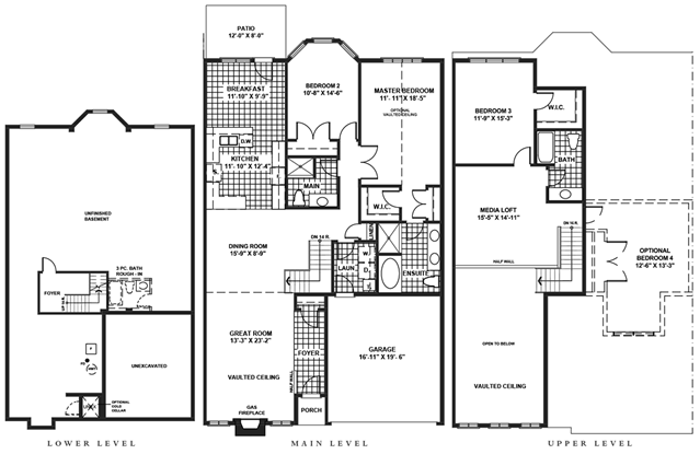
Rosseau Plan

The Waterways of Muskoka
Sold
Sold
3
3
From 2,310
unit-banner-imageunit-banner-imageunit-banner-image
Rosseau Plan details
Rosseau Plan is now sold.
Check out available communities below.