





















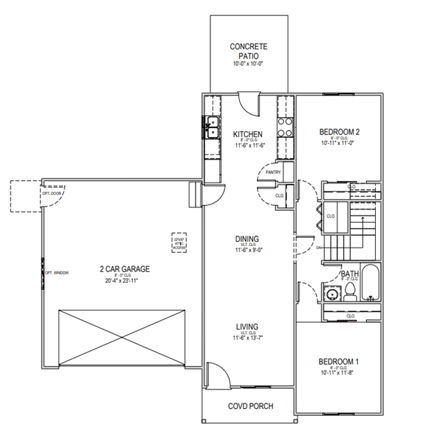
Welcome to The Ponderosa, where affordability meets modern design. This 2-3 bedroom, 1-2 bath home comes with a 2-car garage, ranging from 927 to 1632 square feet. Enter through the front porch or attached garage to an open layout of the living room, dining room, and kitchen all with vaulted ceilings, per plan. Ideal for entertaining, the bedrooms are placed for privacy, with a bathroom, laundry, or stairs in between. Opt for a finished basement for an extra rec room area, a 3rd bedroom option, and a second bathroom. The Ponderosa is designed for functionality, affordability, and a touch of modern style. Prices, plans, and terms are effective on the date of publication and subject to change without notice. Depictions of homes or other features are artist conceptions. Hardscape, landscape, and other items shown may be decorator suggestions that are not included i...
Stay informed with Livabl updates on new community details and available inventory.