Rosemary B
The Willows
Courtice, Courtice
THE GRANITE A
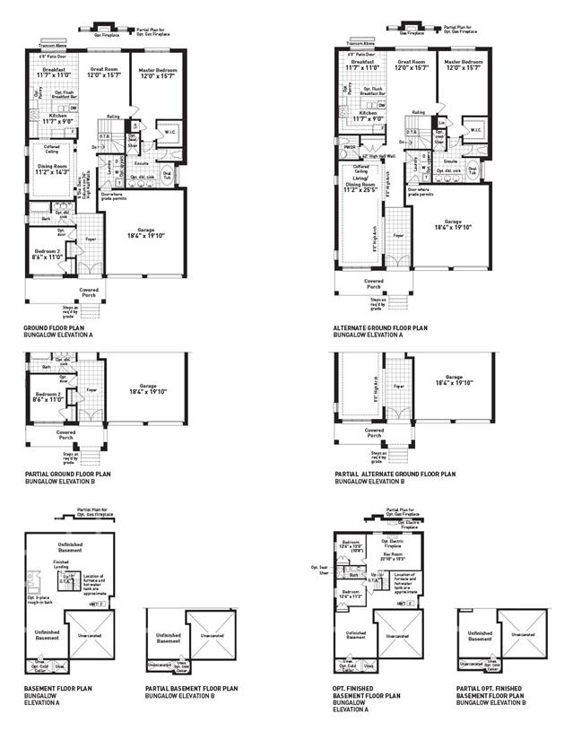
Courtice Glen - Single-Family Homes
Courtice, Bowmanville
THE PEBBLES B
THE RAVEN C
THE GRANITE B
THE RAVEN B
Rosemary C
Rosemary A
Delpark Homes launches The Crosswinds in Bowmanville and opens sales centre
Delpark Homes has launched their newest single-family home community in Bowmanville just an hour’s drive from bustling Toronto.