hero-image-0

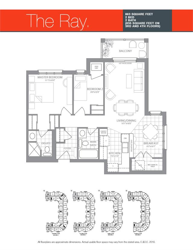
The Ray Plan

By

Kaitlin Corporation

   |   

MODO

MODO
Sold
Sold
2
2
From 863
unit-banner-imageunit-banner-imageunit-banner-image
The Ray Plan details
The Ray Plan is now sold.
Check out available communities below.