hero-image-0
hero-image-1
hero-image-2
hero-image-3

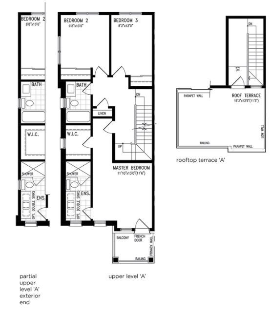
The Sunset Plan

Lakebreeze
Sold
Sold
3
2
1
From 2,091
unit-banner-imageunit-banner-imageunit-banner-image
The Sunset Plan details
The Sunset Plan is now sold.
Check out available communities below.