











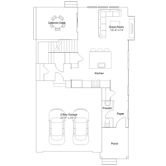
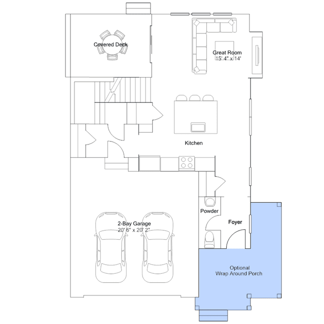
A spacious open floorplan shared between the Great Room and kitchen occupies the first level of this two-story home, offering access to a covered deck through sliding glass doors. All three bedrooms are situated on the second floor, including the luxe owners suite comprised of a restful bedroom, en-suite bathroom and walk-in closet.