hero-image-0
hero-image-1
hero-image-2

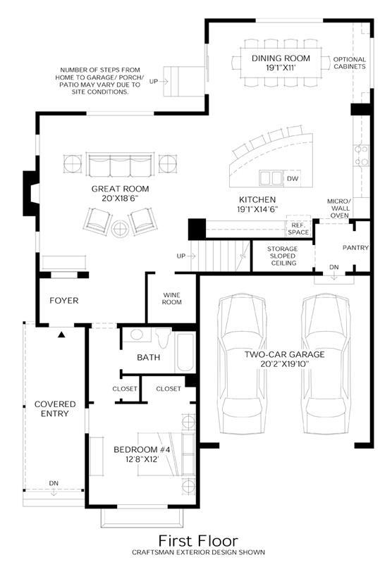
Broadmoor Plan

Meridian Grove
Sold
Sold
4
3
From 3,245
Broadmoor Plan details
Broadmoor Plan is now sold.
Check out available nearby plans below.