



























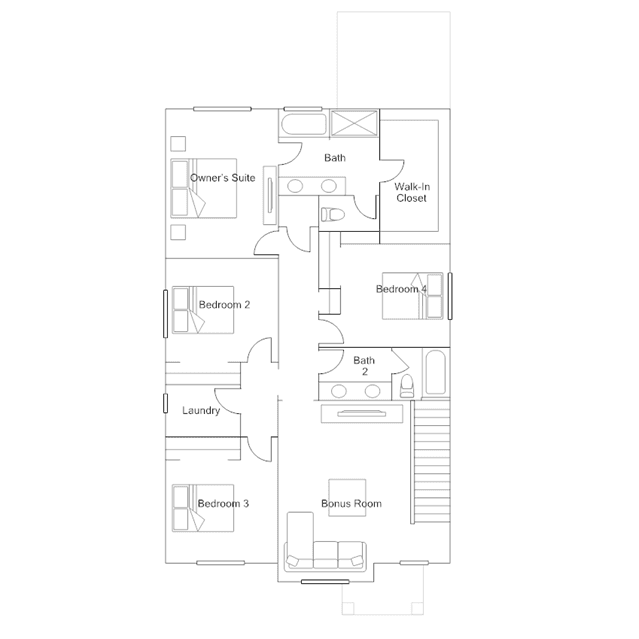
This new two-story home is a family-friendly haven. The first floor features an open-plan layout among a Great Room with a lovely fireplace, a kitchen with a center island and a dining room with patio access. A secluded study offers privacy. The second floor hosts a bonus room that adds shared-living space to the home and four restful bedrooms including an owners suite with a luxe bathroom and large walk-in closet.