


























































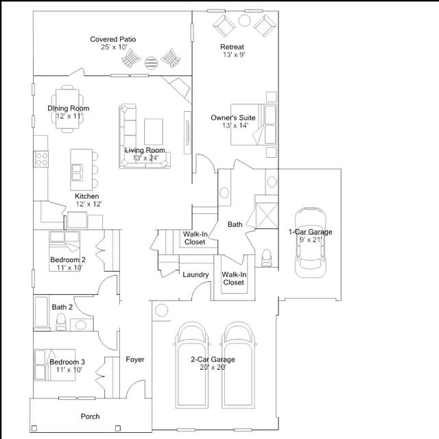
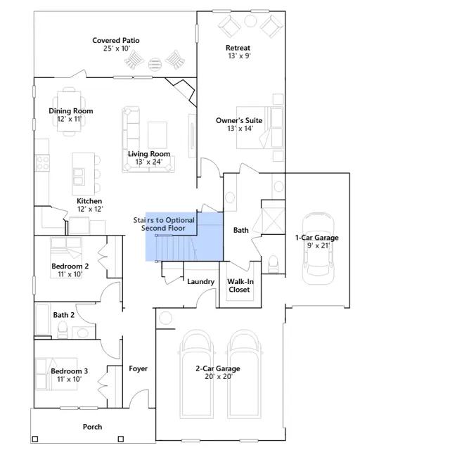
This new single-story home has a spacious, modern layout to suit busy lifestyles and a patio for outdoor living. Thoughtful details include energy-efficient heating and cooling systems and architectural flourishes such as crown molding. Adding a second floor with space for a flex space or a bedroom and a loft is an option at select homesites.
Stay informed with Livabl updates on new community details and available inventory.