


































Get additional information including price lists and floor plans.
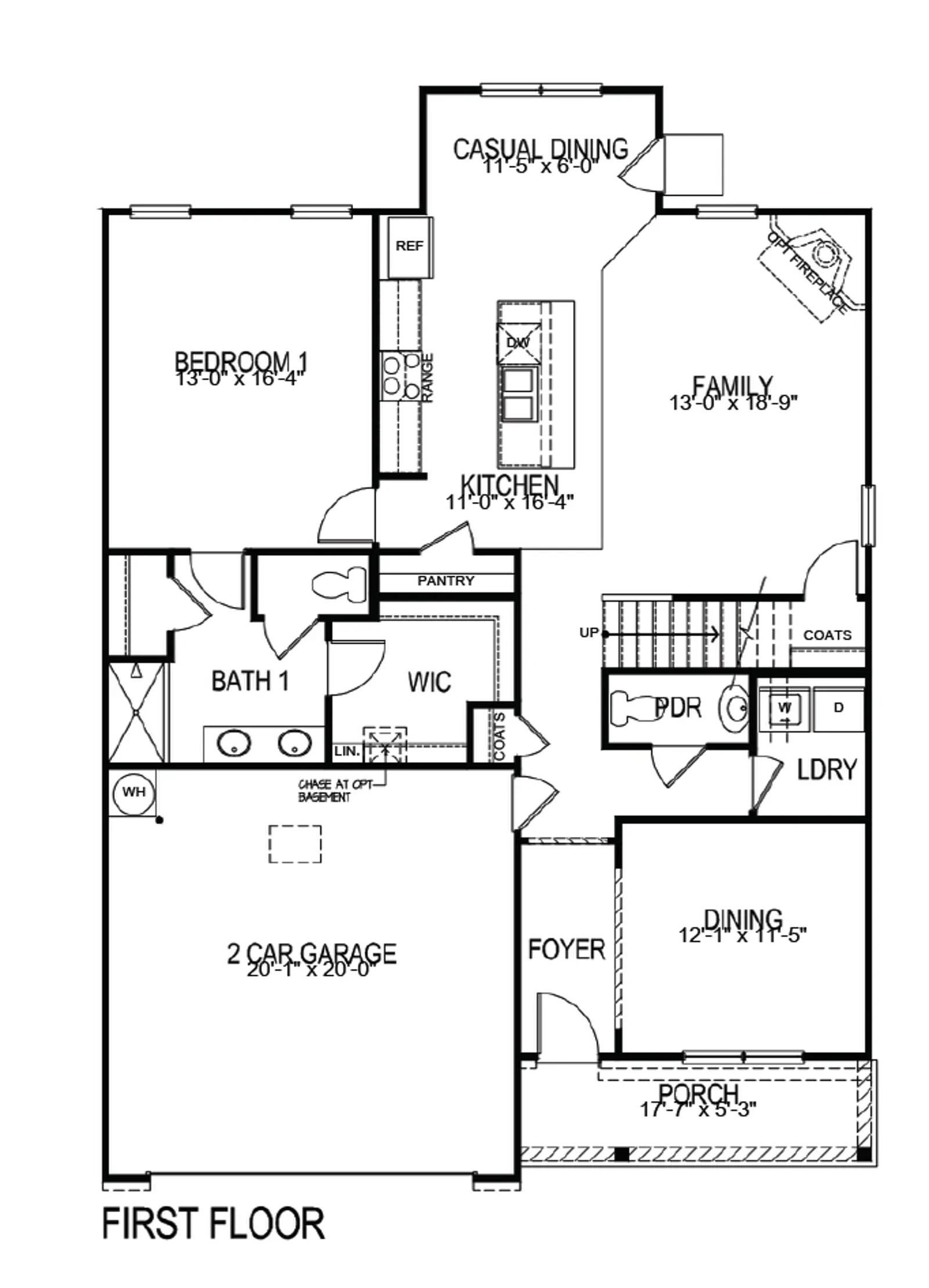
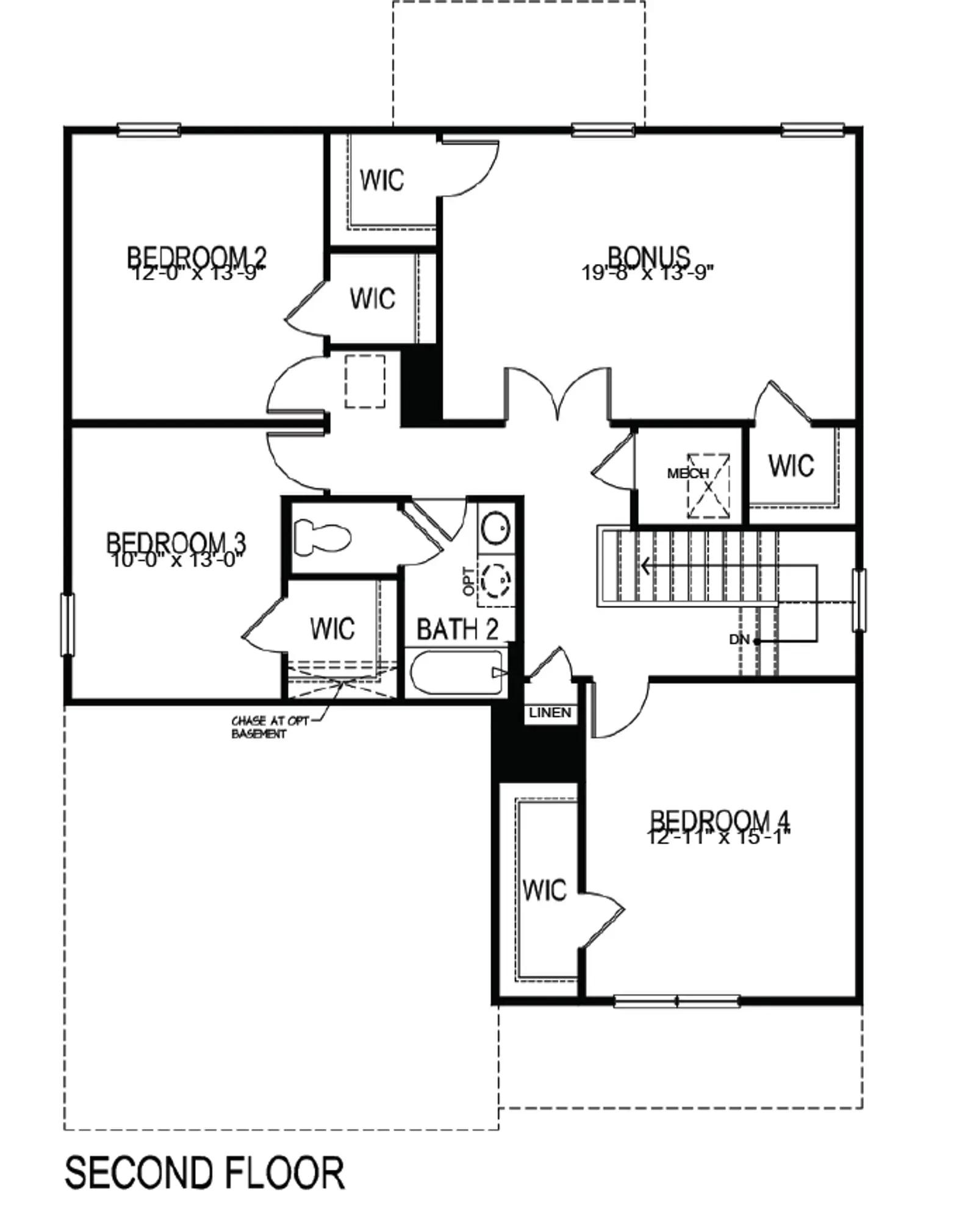
Check out the Salem, a stunning floorplan offered at Boiling Springs. This gorgeous two-story home features four bedrooms, two and a half bathrooms, and a two-car garage, featuring both luxury and practicality with dual primary suites. As you enter, youll be welcomed by an inviting foyer that connects to a spacious dining room before leading into the heart of the home. The open-concept design includes a large living room that seamlessly blends into the functional kitchen. The gourmet kitchen is equipped with stainless steel appliances, ample cabinet space, and a large island with a breakfast bar, perfect for both cooking and casual dining. Adjacent to the kitchen, you'll find the first primary suite, complete with a large walk-in closet and a private bathroom. Upstairs, the second primary suite features one walk-in closet and a private bathroom, featuring p...
Stay informed with Livabl updates on new community details and available inventory.