






































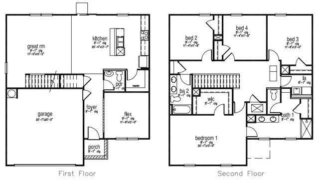
Youll feel right at home in the Galen floorplan in Leatherstone! This two-story home features elevation options including front porches, partial brick siding, and Hardie Plank siding. Inside, impressive finishes, such as Revwood flooring, quartz countertops, and kitchen tile backsplash, are sure to impress. There is plenty of living space between the 4 bedrooms, all located upstairs, and 2.5 bathrooms. The kitchen and great rooms are the heart of the home with an open concept layout. The Galen also features a versitile flex space that could be used as a home office or formal dining area. Also, all of our homes include D.R. Horton's Home is Connected package, an industry leading suite of smart home products that keeps homeowners connected with the people and place they value the most. The technology allows homeowners to monitor and control their home from th...
Stay informed with Livabl updates on new community details and available inventory.