




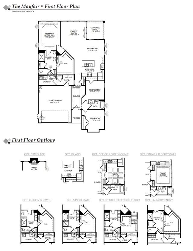
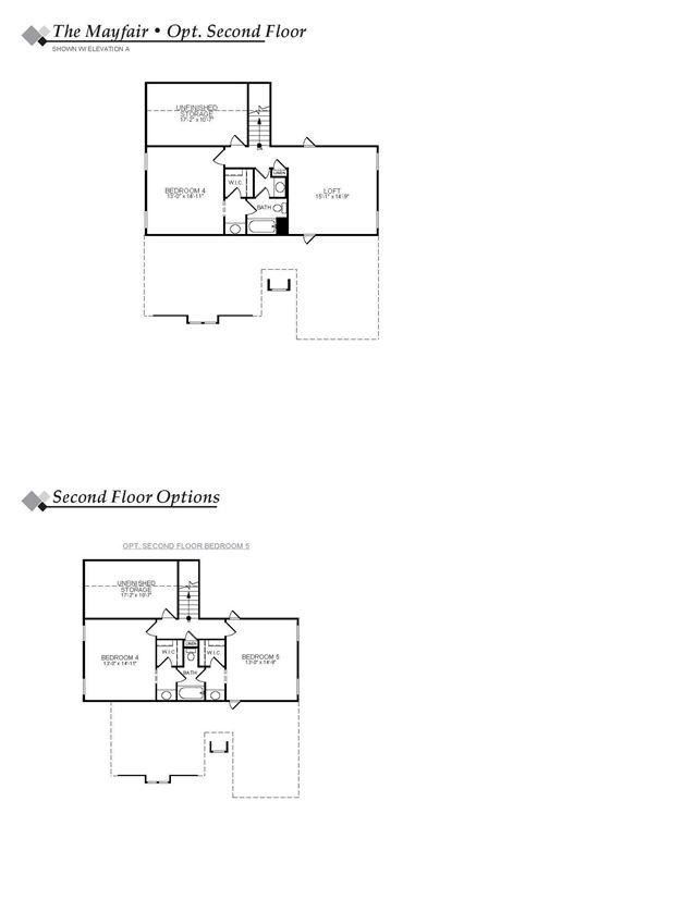
The Mayfair is a three bedroom two bath ranch style home with a first floor primary bedroom and split bedroom design an open layout with a covered patio kitchen with island and walk in pantry plus a large laundry room. Options available to personalize this home include a formal dining room several primary bath options and an optional second floor with a bedroom bath and loft area.