




























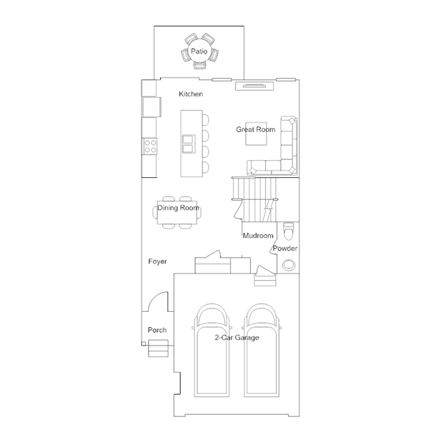
This elegant new two-story townhome offers a versatile unfinished basement. The first floor features an open design among a Great Room for get-togethers, a dining room for meals of every occasion and a kitchen for inspired cooking. A patio enhances outdoor enjoyment. Upstairs, three bedrooms including the owners suite provide personal retreats for family members.