











































Get additional information including price lists and floor plans.
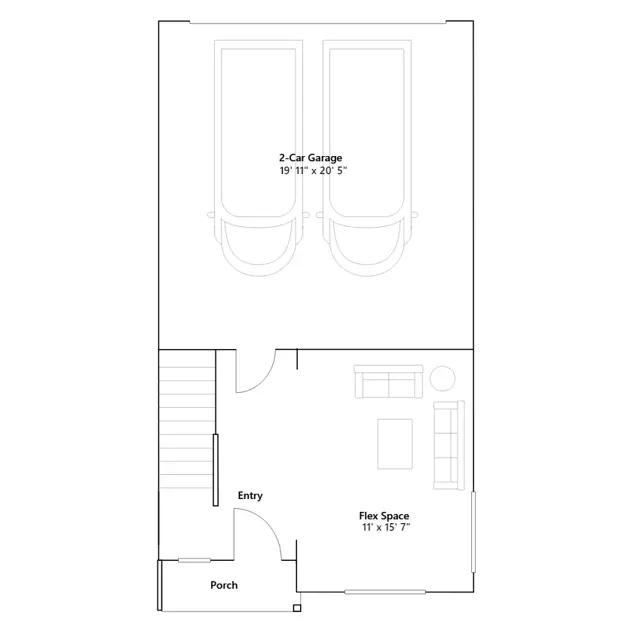
The first level of this three-story home is host to a versatile flex space and offers access to the two-car garage. Upstairs, the Great Room, kitchen and dining room share a convenient and contemporary open floorplan that allows for effortless transition between rooms. All three bedrooms occupy the top level of the home, including the luxe owners suite which is comprised of a restful bedroom, en-suite bathroom and walk-in closet.
Stay informed with Livabl updates on new community details and available inventory.