







































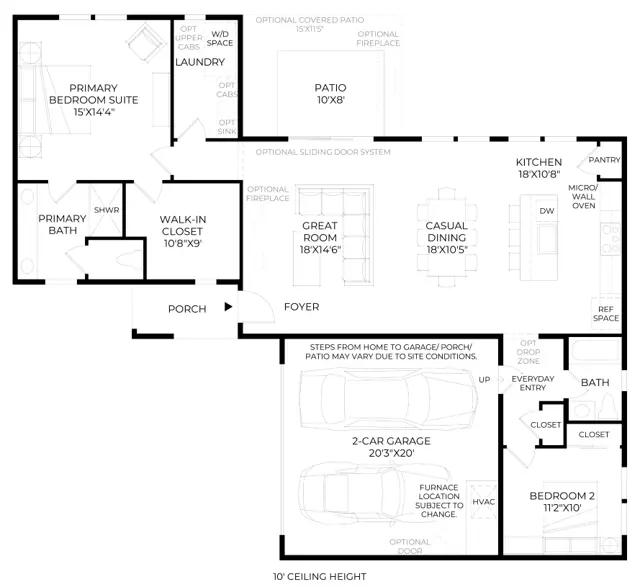
The Meissa's charm lies in its superb design which maximizes use of every space. The home s inviting entry opens immediately onto the spacious great room overlooking a large covered patio, adjacent to the bright casual dining area. The kitchen is highlighted by a large center island with breakfast bar, plenty of counter and cabinet space, and roomy pantry. The serene primary bedroom suite features a sizable walk-in closet and elegant primary bath with dual-sink vanity, large luxe shower, and private water closet. The secluded secondary bedroom features an ample closet and shared hall bath. Additional highlights include a convenient everyday entry, centrally located laundry, and additional storage.
Stay informed with Livabl updates on new community details and available inventory.