















































































































Get additional information including price lists and floor plans.
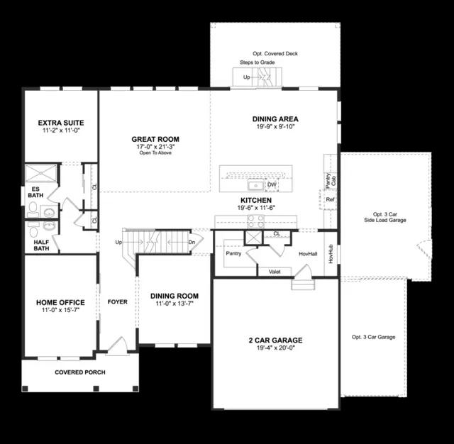
Sun-drenched, double-height great room open to dining area and stunning kitchen with walk-in pantry. Formal dining room and stately home office offering designated spaces for work and quality time. First-floor Extra Suite with private bath, perfect for guests. Elegant primary suite featuring a luxury bath and massive walk-in closet. Stuff of life room, HovHall with valet, and second-floor laundry room for convenient home organization.
Stay informed with Livabl updates on new community details and available inventory.