New Homes for Sale
Articles
Professionals
Log in
Sign up
Photos 31
Videos 0
Map
Interactive floor plan 0
Virtual 0
Columbia II Plan
By
Toll Brothers
   |  Â
Bethel Crossing
Community
Available homes
Get updates
Save
Request info
Request info
Community
Available homes
Request info
Get updates
Save
Request info
Bethel Crossing
Get updates
Request info
Sold
Sold
4
2
1
From 3,124
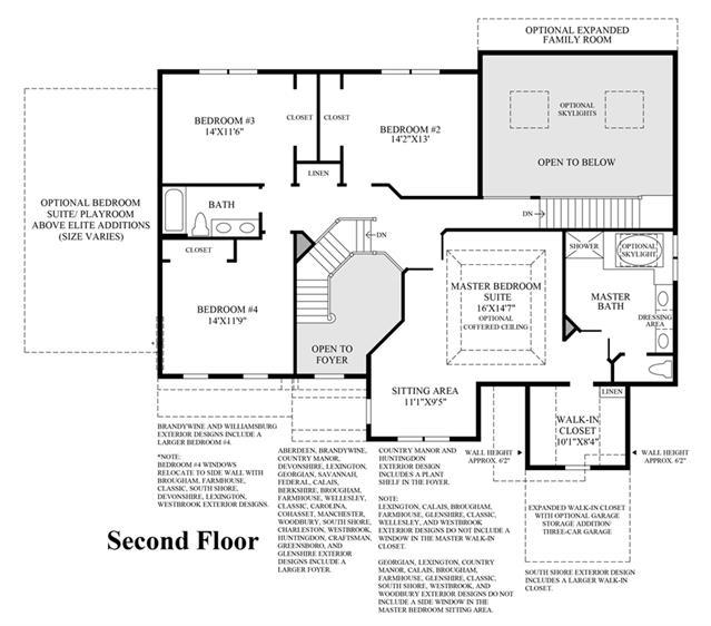
Columbia II Plan details
Address:
Â
Bethel, CT 06801
Plan type:
Â
Detached Two+ Story
Beds:
Â
4
Full baths:
Â
2
Half baths:
Â
1
SqFt:
Â
From 3,124
Ownership:
Â
Condominium
Interior size:
Â
From 3,124 SqFt
Lot pricing included:
Â
Yes
Columbia II Plan is now sold.