


















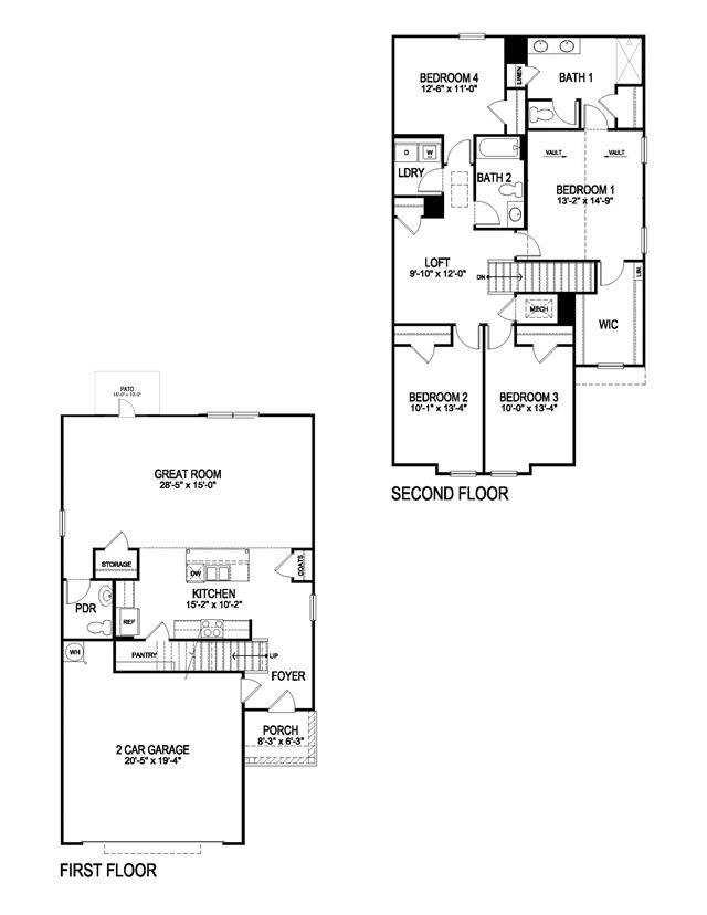
The Elston is a two-story plan with 4 bedrooms and 2.5 bathrooms in 2,305 square feet. The open-concept kitchen has an oversized island for extra seating and a large pantry, and it opens to an expansive living room. A powder room, coat closet and additional storage closet complete the main level. Bedroom One on the second level features a vaulted ceiling and offers a luxurious bathroom with a walk-in shower, private water closet, double vanities, and an oversized walk-in closet. There are 3 additional bedrooms, a full bathroom, a walk-in laundry room, and a loft-style living room on the second level. Quality materials and workmanship throughout, with superior attention to detail, plus a one-year builders warranty. Your new home also includes our smart home technology package! A D.R. Horton Smart Home is equipped with technology that includes the following: a Z-Wa...