













Get additional information including price lists and floor plans.
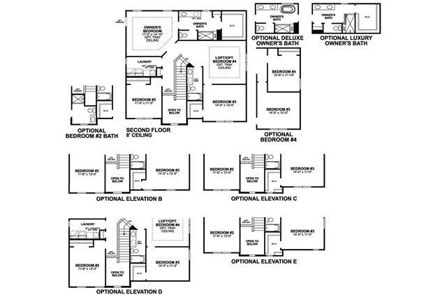
Welcome home to the Bucknell, a 2-story home available from our exclusive Signature Series. This floorplan does not only have exquisite curb appeal, the home design offers an array of options that will allow you to make this plan fit your personal needs and style. Options such as fourth or fifth bedrooms, or one to two additional full baths for extended family, or overnight guests. The exterior of the home includes a traditional elevation with a full front porch, and decorative columns. Select one of four additional elevations on this home, including a farmhouse elevation with full front porch, decorative columns and batten board siding, a second traditional elevation with a full front porch, columns and faux dormer windows, or two craftsman elevations, both with full front porch, tapered columns and stone, and shake shingle accents. This home includes a 2-car ga...
Stay informed with Livabl updates on new community details and available inventory.