












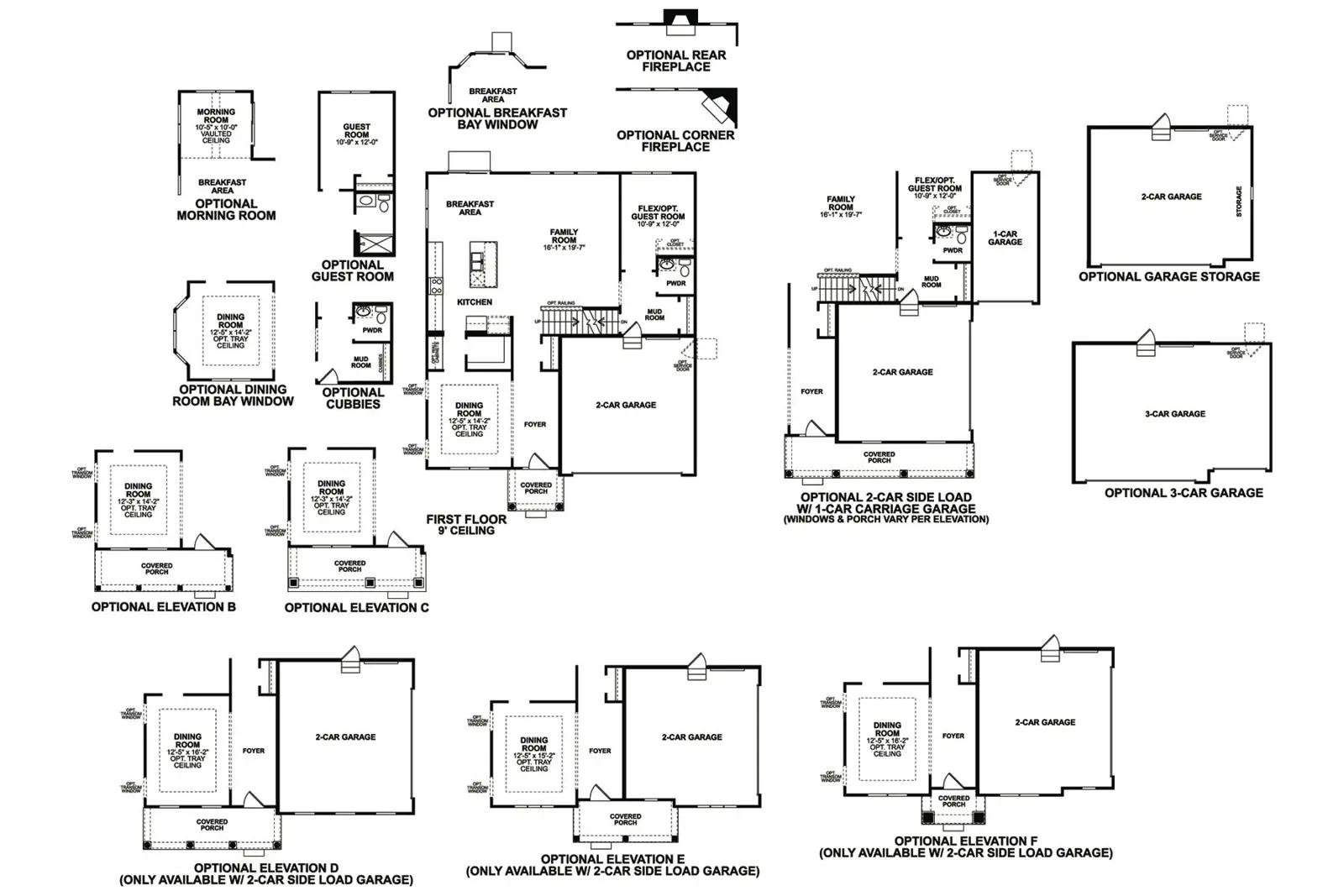
Welcome home to the Emory; a 2-story, 4-bedroom, 2-and-a-half bath design in our Signature Collection. You will be amazed at the numerous opportunities this plan offers to personalize your home, both on the inside and out. Choose from three beautiful exteriors: The traditional, farmhouse, and craftsman elevations all have terrific curb appeal.
Stay informed with Livabl updates on new community details and available inventory.