














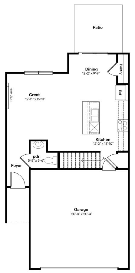
Welcome to the Sydney floor plan in The Hills Townhome community located in Bennington, NE. The Sydney is a popular two-story townhome plan that offers 3 bedrooms, 2.5 bathrooms, a 2-car garage, and 1,511 sq. ft. of comfortable living space. Entering through the front door, the foyer will lead you past a guest bath and into the living room at the heart of the home. You will notice that the spacious living room is complemented by an electric fireplace and large windows that flood the main level with natural light. Beyond the living room, youll find the gourmet kitchen that overlooks the rest of the main level. The kitchen features white cabinetry, quartz countertops, stainless steel appliances, and a sizable pantry with ample storage. The built-in island provides additional seating for the adjacent dining nook that overlooks the back patio. Upstairs will become ...
Stay informed with Livabl updates on new community details and available inventory.