New Homes for Sale
Articles
Professionals
Log in
Sign up
Photos 5
Videos 0
Map
Interactive floor plan 0
Virtual 0
The Valencia Plan
By
D.R. Horton
|
Three Creeks - Colt Creek
Community
Available homes
Get updates
Save
Request info
Request info
Community
Available homes
Request info
Get updates
Save
Request info
Three Creeks - Colt Creek
Builder website
Request info
Sold
Sold
5
3
1
From 3,499
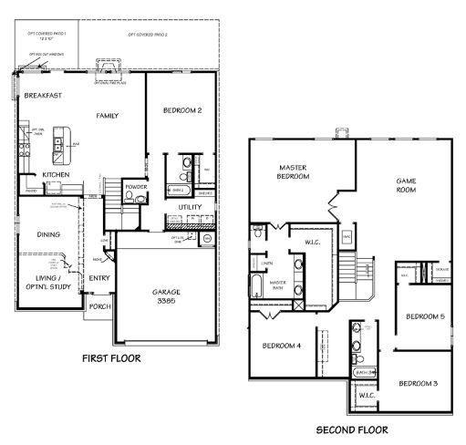
The Valencia Plan details
Address:
Belton, TX 76513
Plan type:
Detached Two+ Story
Beds:
5
Full baths:
3
Half baths:
1
SqFt:
From 3,499
Ownership:
Fee simple
Interior size:
From 3,499 SqFt
Lot pricing included:
Yes
The Valencia Plan is now sold.
Interested? Receive updates
Stay informed with Livabl updates on new community details and available inventory.
Get updates