









































































Get additional information including price lists and floor plans.
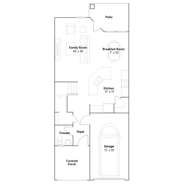
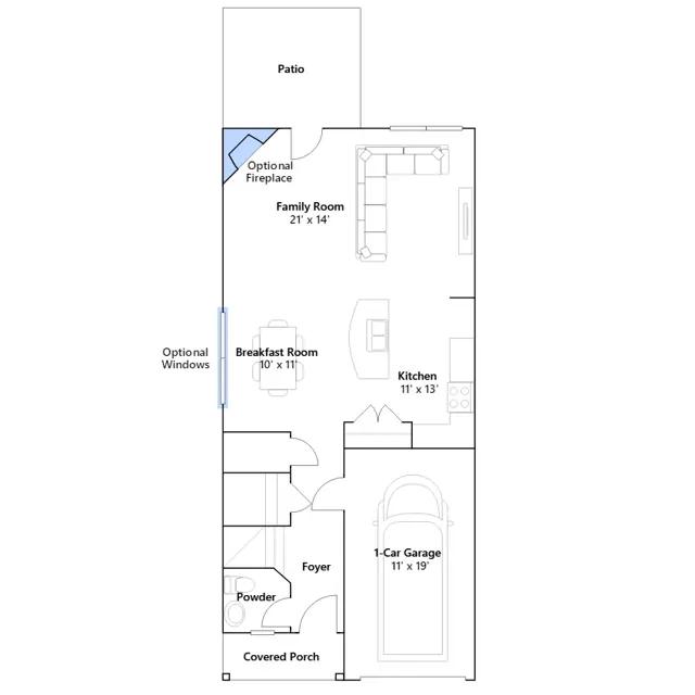
This new two-story home is designed for modern living and entertainment. At the heart of the first floor is a spacious open layout shared among a well-equipped kitchen, a breakfast room for everyday meals and a welcoming family room with patio access. On the second floor are two secondary bedrooms and a peaceful owners suite complemented by an attached bathroom.
Stay informed with Livabl updates on new community details and available inventory.