












































































Get additional information including price lists and floor plans.
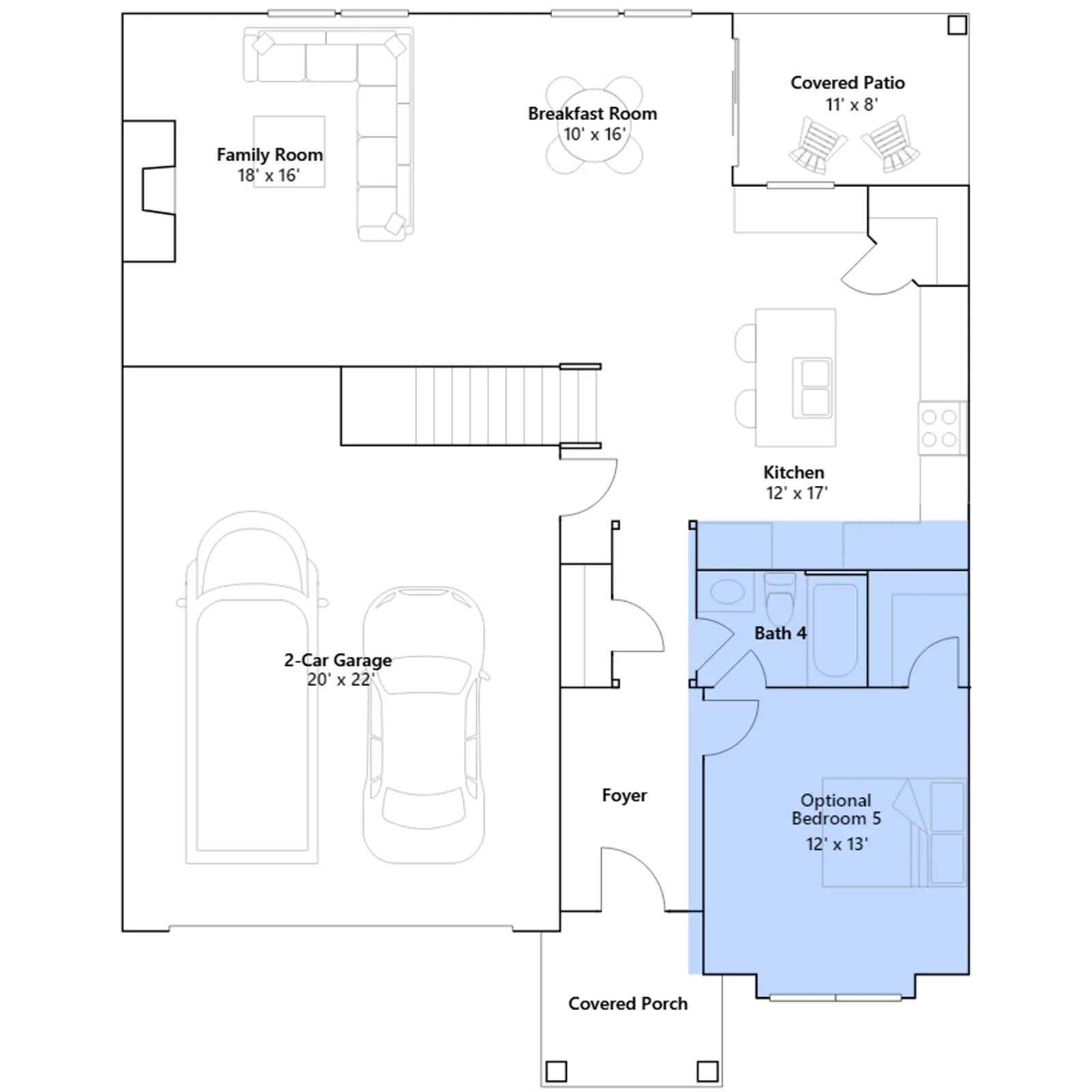
This new two-story home was designed for gracious living. The first floor features a large family room for shared moments, a modern kitchen, a casual breakfast room to complement a formal dining room and a front porch and covered patio for outdoor living. Upstairs are a loft, three secondary bedrooms with walk-in closets and the owners suite, which has two of them.
Stay informed with Livabl updates on new community details and available inventory.