hero-image-0
hero-image-1
hero-image-2
hero-image-3

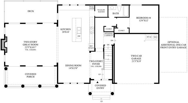
Jeffers with Basement Plan

By

Toll Brothers

   |   

Belvedere at Bellevue

Belvedere at Bellevue
Sold
Sold
5
4
From 4,549
Jeffers with Basement Plan details
Jeffers with Basement Plan is now sold.
Check out available nearby plans below.