New Homes for Sale
Articles
Professionals
Log in
Sign up
Photos 5
Videos 0
Map
Interactive floor plan 0
Virtual 0
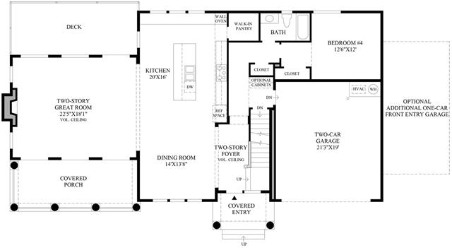
Jeffers w Bsmt Plan
By
Toll Brothers
   |  Â
Belvedere at Bellevue
Community
Available homes
Get updates
Save
Request info
Request info
Community
Available homes
Request info
Get updates
Save
Request info
Belvedere at Bellevue
Get updates
Request info
Sold
Sold
5
4
From 4,549
Jeffers w Bsmt Plan details
Address:
Â
Bellevue, WA 98006
Plan type:
Â
Detached Two+ Story
Beds:
Â
5
Full baths:
Â
4
SqFt:
Â
From 4,549
Ownership:
Â
Fee simple
Interior size:
Â
From 4,549 SqFt
Lot pricing included:
Â
Yes
Jeffers w Bsmt Plan is now sold.
Check out available nearby plans below.
Similar 5 bedroom plans nearby
view all
Bridgewater
Parkside at May Creek
From $1,699,995
Newcastle
Plan 4
Alterra
From $2,434,900
Newcastle
Plan 2
Alterra
From $2,504,900
Newcastle
Plan 5
Alterra
From $2,448,900
Newcastle
Plan 1
Alterra
From $2,479,900
Newcastle
Plan 3
Alterra
From $2,498,900
Newcastle
Brentwood
Parkside at May Creek
From $1,424,995
Newcastle