




































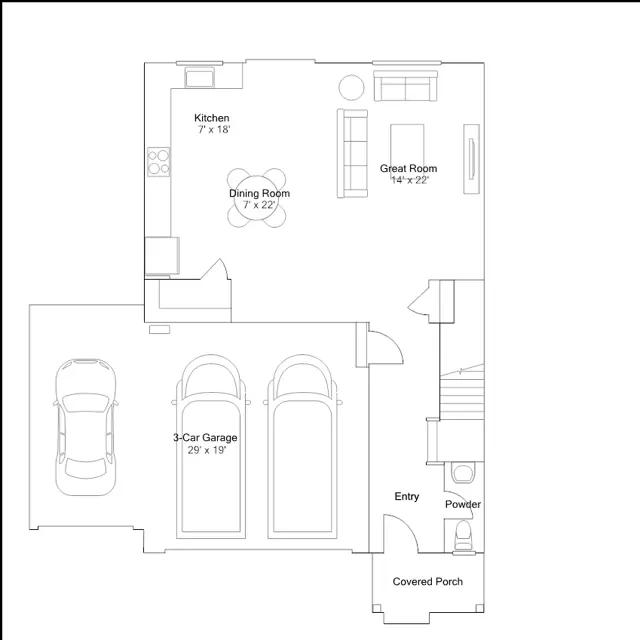
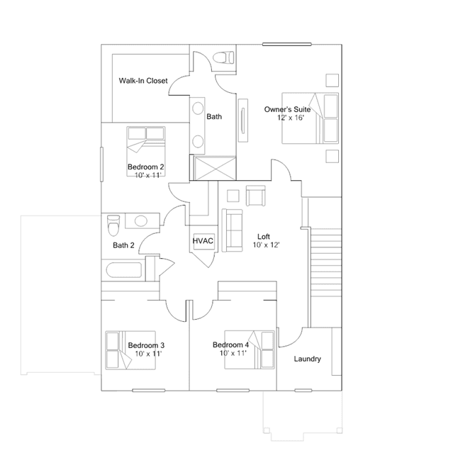
This two-story home features a first floor dedicated as the main living space, with an open Great Room, kitchen and dining area that effortlessly connect. Upstairs is a small loft for more shared living space, surrounded by all four bedrooms including the owners suite.