













Get additional information including price lists and floor plans.
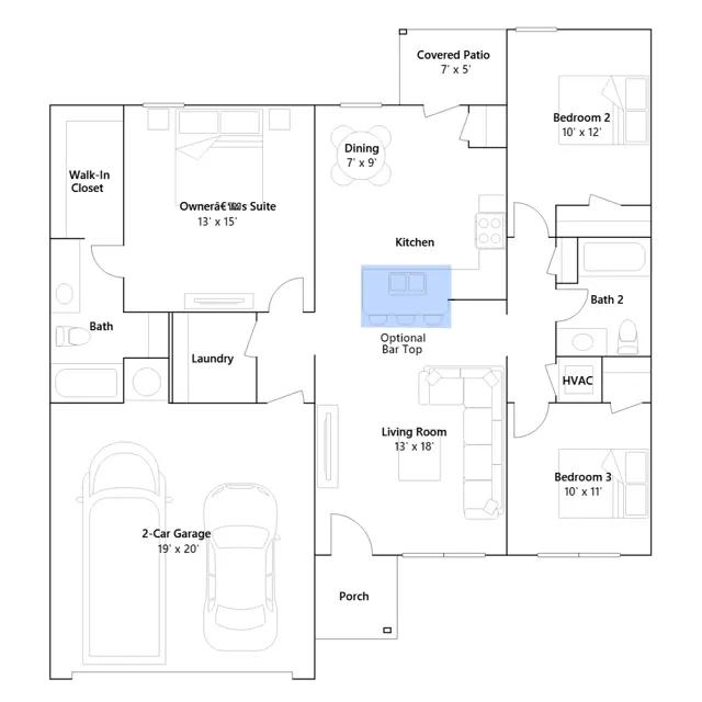
This new single-story home design combines comfort and style. At the center of the home is a welcoming living room and a peninsula-style kitchen that can double up as a dining space. A rear door leads out to the covered patio. Framing this main living area are the two secondary bedrooms and the owners suite equipped with an attached bathroom and walk-in closet.
Stay informed with Livabl updates on new community details and available inventory.