





















































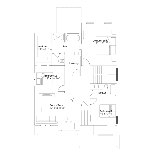
This two-story home has a simple layout that works well for growing families. The front door leads to an open area that is great for entertaining guests, offering a modern kitchen, Great Room and dining area with a back patio. Upstairs are three bedrooms, including the owners suite with a full bathroom, plus a versatile bonus room.
Stay informed with Livabl updates on new community details and available inventory.