

















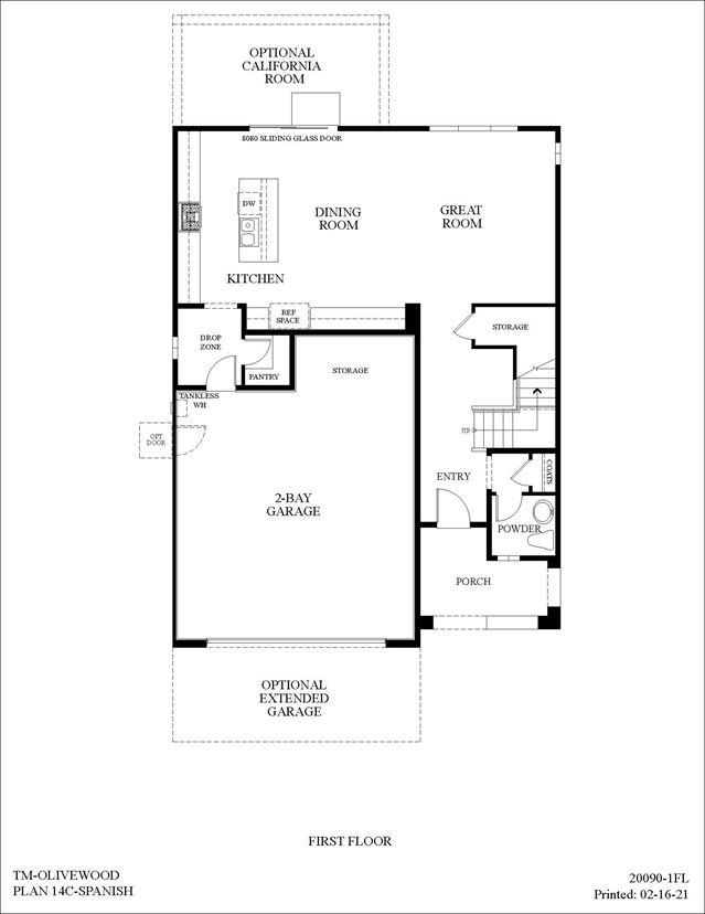
Welcome to Plan 14! Designed with family in mind, this home features four bedrooms or optional office, and two and a half baths. A covered porch leads you into the front foyer where you will find a half bath at the front hall. The gathering room integrates beautifully with the dining and kitchen area. This well equipped kitchen provides an island with double stainless steel sink, granite counter tops, walk-in pantry, and shaker style cabinets. As you make your way up to the second floor you will find the primary suite which showcases a large walk-in closet, private bathroom with a walk-in shower, jacuzzi tub, dual sink vanity and an enclosed water closet. Three additional bedrooms, one full bath, and a laundry room complete the upstairs. Home amenities include energy efficient appliances, two-car attached garage, LED lighting, whole-home air filtration, and othe...