hero-image-0
hero-image-1

90 Dansereau Way

Dansereau Meadows
For sale
MOVE IN Fall 2025
For sale
$339,900
Available
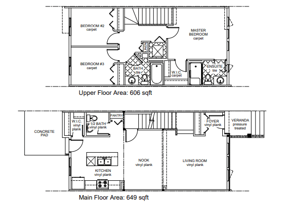
2
2
2
1
1,058
90 Dansereau Way details

Contact sales center

Get additional information including price lists and floor plans.

Floor plan

2021_11_23_09_00_32_nevaro-merano-4-plex-rendering-hi-res.jpg
2021_11_23_09_00_38_the_novara_ii.png
Sold

The Novara II

Dansereau Meadows

Features - 2 Stories - 2nd Floor Laundry - 9 Foot Ceilings - Double Detached Garage - Luxury Vinyl Plank - Rear Concrete BBQ Pad - Standard Quartz Countertops

Interested? Receive updates

Stay informed with Livabl updates on new community details and available inventory.