
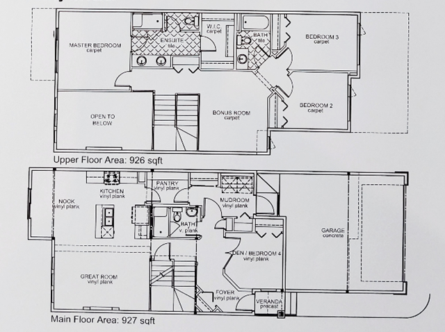
Get additional information including price lists and floor plans.


9-1" Main Floor Ceiling Height Vinyl Plank throughout Main Floor Quartz Countertops in Kitchen & Bathrooms Full Bathroom on Main Floor Chimney Hoodfan Tile in all Second Floor Bathrooms Electric Fireplace in Great Room Stand-Up Shower in Ensuite Railing Throughqut Side Entrance
Stay informed with Livabl updates on new community details and available inventory.