















































Get additional information including price lists and floor plans.
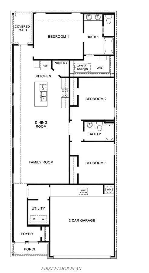
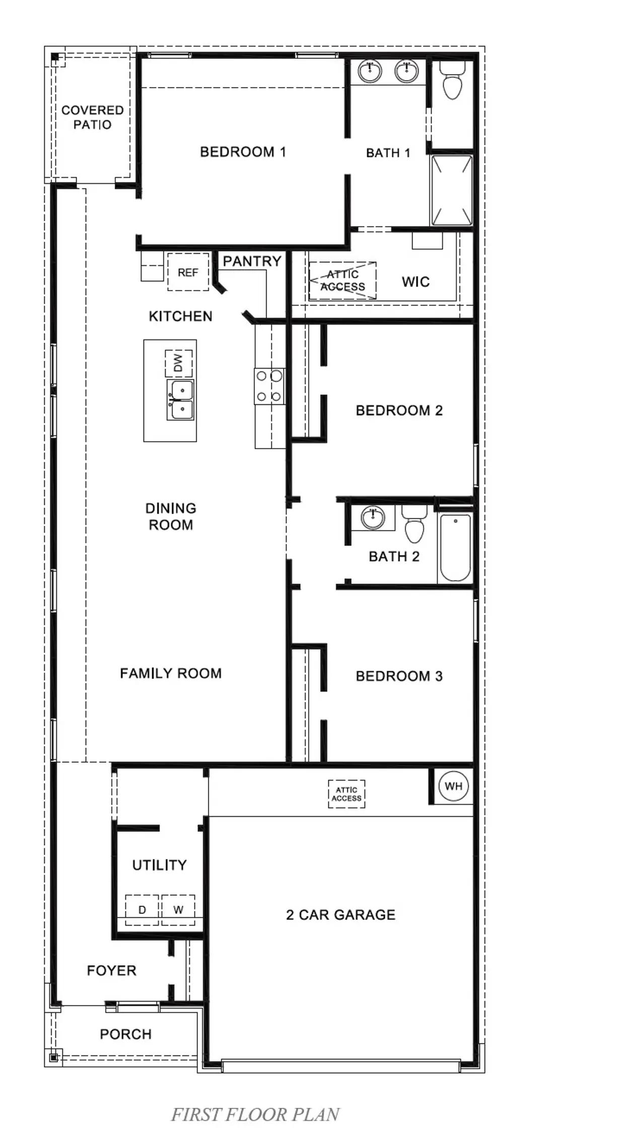
The Diana floor plan is a spacious 1,535 sq ft single-story home featuring an inviting front porch that leads into a welcoming foyer and a centrally located family room that flows seamlessly into the open dining area and spacious kitchen, complete with a pantry, center island, and ample counter space. The thoughtfully arranged layout includes three bedrooms, with Bedroom 1 offering a private retreat complete with a large walk-in closet and an adjoining bath with dual sinks. Bedrooms 2 and 3 are positioned near the second full bath for added convenience. A dedicated utility room is conveniently located near the garage entry, while a covered patio at the rear of the home provides the perfect space for outdoor relaxation. Located in Emberly, a master-planned community featuring The Haven Amenity Village, that includes a clubhouse with fitness center, outdoor courtya...
Stay informed with Livabl updates on new community details and available inventory.