














































































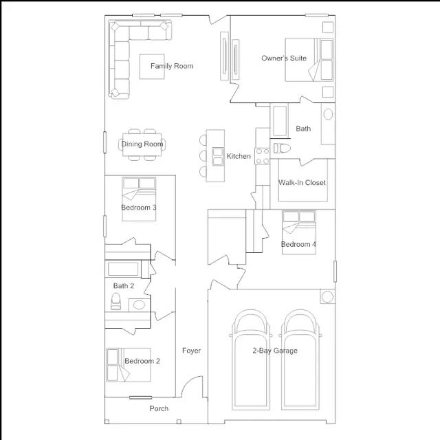
This single-story home is great for young families with three bedrooms tucked into a corner at the front of the home and an owners suite in back. Down the hall is the open living area, which provides a place to relax and spend time together with a modern kitchen, family room and dining room.