



























































Get additional information including price lists and floor plans.
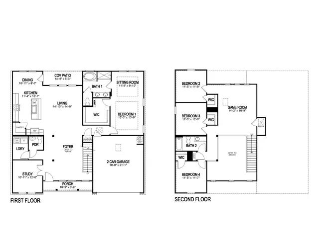
Find your home in with our Ashland floorplan in Legacy Oaks, a new home community in Central, Louisiana. With 2,619 sq. ft., youll have the perfect amount of space in this 4-bedroom, 2.5-bath layout. This home also has a study, a game room, and a 2-car garage. As you enter the home, you will immediately recognize that it has been expertly crafted with your comfort and convenience in mind. Every detail has been carefully considered, from the study to the first-floor laundry room and powder room. Continuing through the expansive open-concept living area, you will find the living room, kitchen, and dining room. Smart home technology integrated into every D.R. Horton home, you can control every aspect of your living space with ease. The kitchen offers shaker-style cabinets, and gooseneck pulldown faucets in the kitchens. Theres stainless-steel Whirlpool appliances,...
Stay informed with Livabl updates on new community details and available inventory.