



Get additional information including price lists and floor plans.



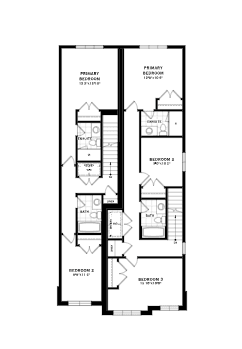
Includes $113,000 in upgrades This 2-storey, 2-unit (side-by-side) offers a range of living options. The first unit 1,535 sq ft. offers 3 bedrooms and 2.5 bathrooms, providing ample space for a family to live and grow. The second unit covers 1,115 sq ft and features 2 bedrooms and 2 bathrooms, making it a perfect option for smaller families or individuals. Both units feature in suite laundry, separated home systems separated open concept living on main floor from functional bedrooms on second floor. Each unit has a dedicated garage space for additional storage and functionality. Source: Bradley Homes
Stay informed with Livabl updates on new community details and available inventory.