hero-image-0

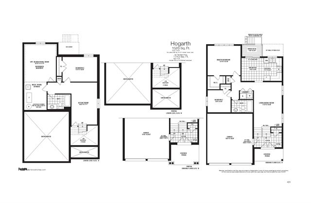
Hogarth Plan

Centretown Village
Sold
Sold
2
1
From 1,520
unit-banner-imageunit-banner-imageunit-banner-image
Hogarth Plan details
Hogarth Plan is now sold.
Check out available communities below.