






































































Images coming soon
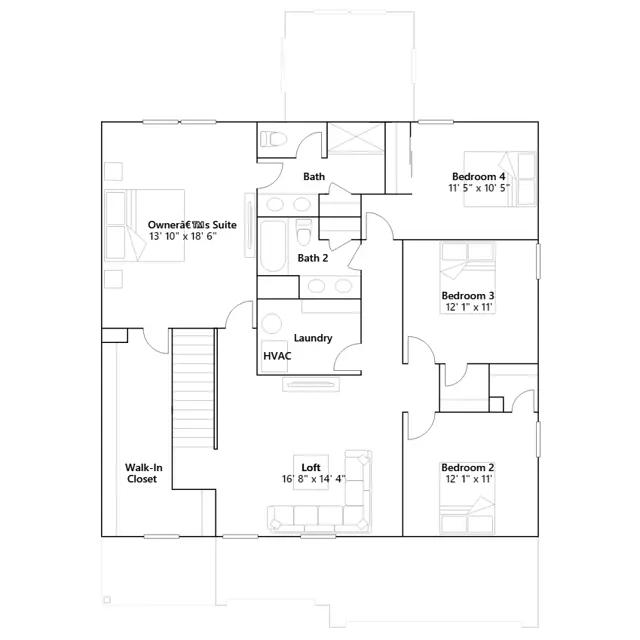
The first floor of this two-story home is host to an inviting open floorplan consisting of a Great Room, dining area and modern kitchen. A bedroom on the primary floor is ideal for a guest suite or home office. Upstairs, there are four additional bedrooms, including the luxe owners suite. A versatile loft provides a shared living area on the second floor.
Stay informed with Livabl updates on new community details and available inventory.