hero-image-0
hero-image-1

15611 Via Bassano Drive

By

D.R. Horton

   |   

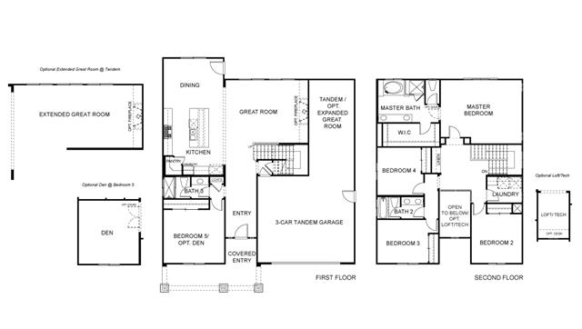
The Manors II

The Manors II
Sold
Sold
4
3
2,519
15611 Via Bassano Drive details
unit-banner-image
unit-banner-image
unit-banner-image
15611 Via Bassano Drive is now sold.
Check out available nearby homes below.