





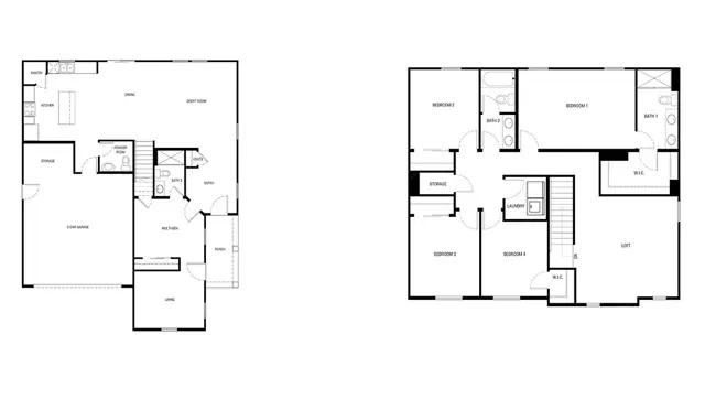
The Sparrow is a spacious two-story, five-bedroom, three-and-a-half-bath home with 9-foot ceilings and approximately 2,554 square feet of well-designed living space. A desirable MultiGEN suite on the first floor includes a private entrance and full bathroomideal for guests or extended family. The open kitchen, dining, and living areas are perfect for entertaining and feature shaker-style cabinetry, quartz countertops with backsplash, a center island with pendant lighting and snack bar, walk-in pantry, and Whirlpool stainless-steel appliances. Black finishes are standard throughout the home. Upstairs, a versatile loft, the primary suite with dual vanity sinks and a large walk-in closet, three additional bedrooms, and an indoor laundry room complete the layout.
Stay informed with Livabl updates on new community details and available inventory.