








































































Get additional information including price lists and floor plans.
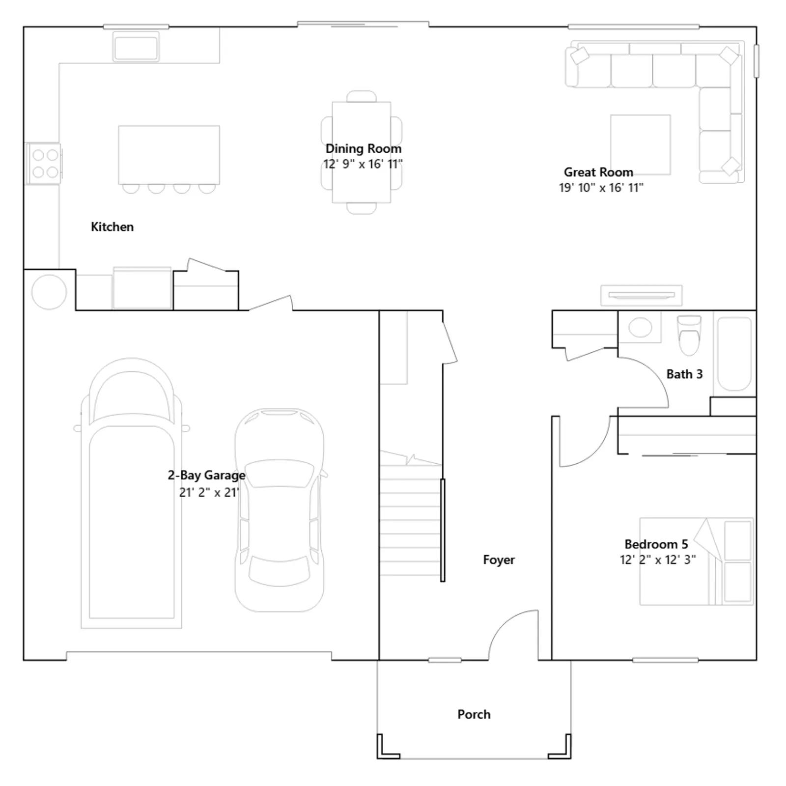
Upon entry of this new two-story home is a generous bedroom suite and full bathroom, leading to an open-concept floorplan shared between the kitchen, living and dining areas. Two additional bedrooms and an elegant owners suite with a spacious bedroom and en-suite bathroom share the second floor with a flexible loft, providing additional space to lounge, play or entertain.
Stay informed with Livabl updates on new community details and available inventory.