
























































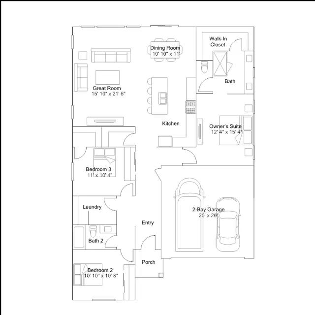
This single-level home features a low-maintenance layout designed for modern living. Two secondary bedrooms are located off the entry, leading to an inviting open-concept living area shared between the kitchen, dining room and Great Room. A luxurious owners suite is tucked into a private corner at the back of the home, with access to a spa-inspired bathroom and walk-in closet.
Stay informed with Livabl updates on new community details and available inventory.