hero-image-0
hero-image-1
hero-image-2

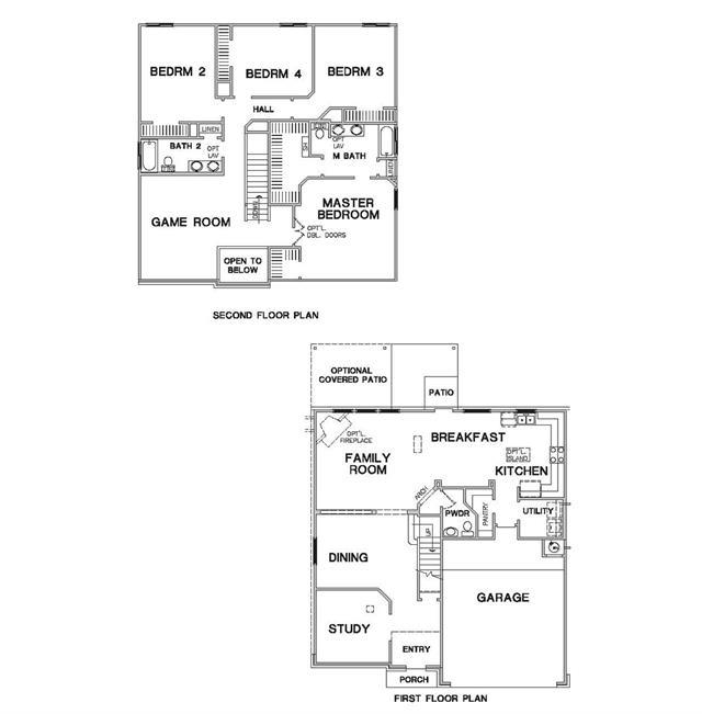
The Trenton Plan

Walnut Creek Enclave
Sold
Sold
4
2
1
From 2,552
unit-banner-imageunit-banner-imageunit-banner-image
The Trenton Plan details
The Trenton Plan is now sold.
Check out available nearby plans below.