hero-image-0
hero-image-1
Traditional Homes at Easton Pa...
For sale
For sale
From $550,000
2
4
3
From 2,975
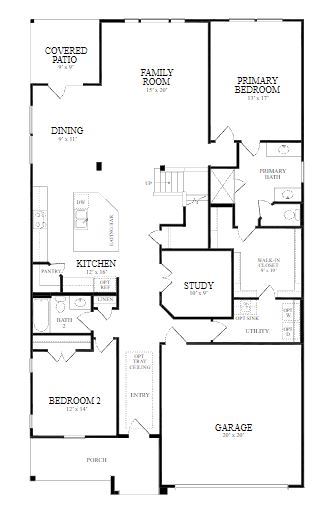
Siena Plan details

Contact sales center

Get additional information including price lists and floor plans.

Interested? Receive updates

Stay informed with Livabl updates on new community details and available inventory.