



































Images coming soon
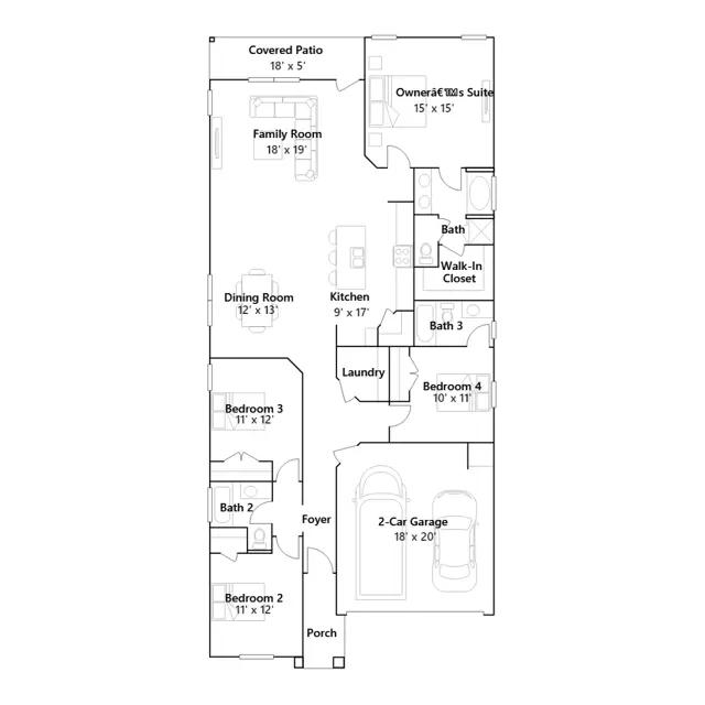
This single-story home has an open layout where the kitchen, family room and dining area meet, while a door offers access to the covered patio. The rest of the home features an owners suite with an en-suite bathroom and walk-in closet, as well as three versatile secondary bedrooms, which are great for residents, guests or a home office.
Stay informed with Livabl updates on new community details and available inventory.