






















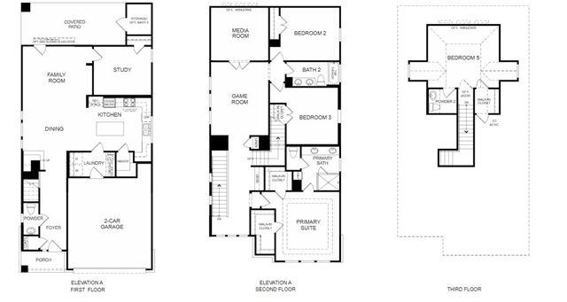
The Woodwind is a 2-story home positioned within Foxfield by MileStone, offering approximately 2,956 square feet of living space with 4 bedrooms and 3.5 bathrooms. The home is crafted with a blend of modern design cues, high ceilings on the lower level, and luxury finishes, balancing aesthetic appeal with functional room layouts.A covered patio sets the stage for indoor-outdoor enjoyment. Designed for modern living with everyday elegance, Woodwind blends functionality and sophistication in North Austin's Foxfield community.
Stay informed with Livabl updates on new community details and available inventory.