Parten: 75ft. lots
Great Hills, Austin
Milky Way at River Place
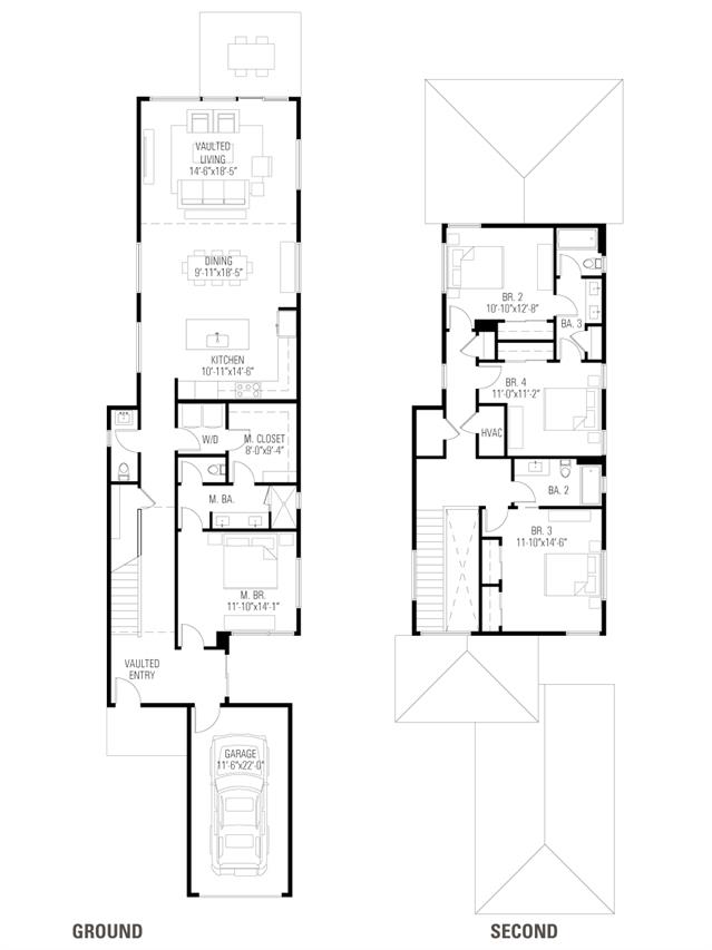
Mansfield - River Place, Austin
Parten: 85ft. lots
Foxfield
Gracy Woods, Austin
Central Living Urban Quick Move-in Homes
North Burnet, Austin
The Grove
Rosedale, Austin
Parkside at Mueller
Mueller, Austin
IRIS at Mueller