hero-image-0
hero-image-1

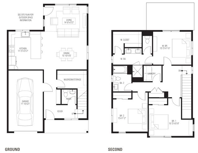
Home A Plan

By

StoryBuilt

   |   

Canopy

Canopy
Sold
Sold
3
2
From 1,801
Home A Plan details
Home A Plan is now sold.
Check out available nearby plans below.